Anneloes van Dijk
Bouwen met natuurlijke dynamiek
De sturing van architectuur binnen de natuurlijke dynamiek van wind en zand op Vlieland


Het terugbrengen van dynamiek in kustgebieden is cruciaal met het oog op zeespiegelstijging. Vastgelegde duinlandschappen missen de kans om mee te groeien en mee te bewegen met de zee. Dit onderzoekscentrum op Vlieland onderzoekt hoe deze dynamiek kan worden hersteld en hoe architectuur kan bijdragen aan het versneld versterken van kustgebieden.

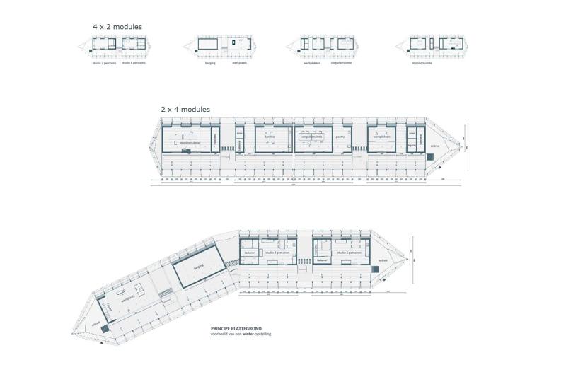
Het gebouw faciliteert niet alleen de onderzoeksruimtes, maar is ook zélf het onderzoeksobject. Opgebouwd uit schakelbare modules kan het variëren in vorm en opstelling om wind te trechteren of te laten botsen, waardoor zand versneld verplaatst of juist achterblijft. Zo ontstaat meer inzicht in hoe bebouwing het gedrag van wind en zand beïnvloedt.


De modules worden als bouwpakket samengevoegd tot beestachtige volumes die zich in verschillende periodes langs de kustlijn verplaatsen. Dit levert kennis op voor een nieuwe manier van bouwen in en nabij duingebieden, waarbij architectuur natuurlijke processen niet tegenwerkt maar juist versterkt.



Deze pagina is voor het laatst gewijzigd op 4 november 2025
Sta jij op deze pagina? En heb je een opmerking? Mail naar de redactie.